You are currently viewing Extension maison à Cabriès
Extension & rénovation globale d'une maison à Cabriès

Extension maison à Cabriès

 Rénovation intérieure et extérieure d’une villa provençale à Cabriès 

Rénovation intérieure du rez-de-chaussée :

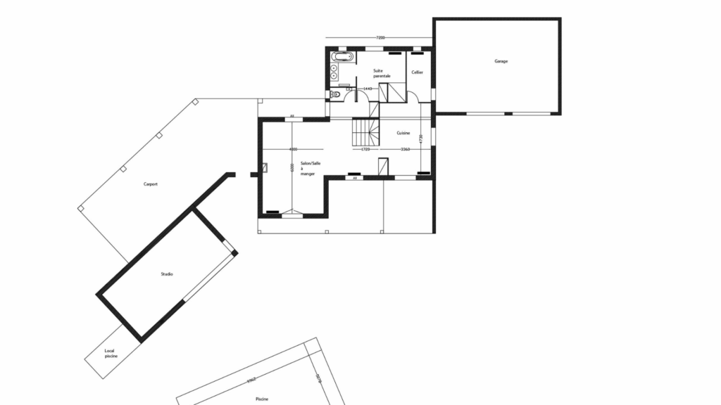
– Création d’une extension pour agrandir le salon et ouvrir sur le magnifique jardin

– Création d’une entrée centrale, d’une suite parentale

Rénovation du studio de jardin relié à l’extension centrale

Rénovation extérieure : lui donner un esprit plus moderne tout en préservant un certain aspect authentique.

– Création d’une terrasse en L et de terrasses parsemées en ilots autour de la piscine

– Aménagements paysagers.

Maison à Cabries avant l'extension
Maison à Cabries avant l'extension

Le brief de notre client :

Agrandir le salon, ouvrir sur le magnifique jardin, apporter un maximum de lumière et, apporter un esprit moderne et fonctionnel.

Archipel conçoit vos plans
Archipel conçoit vos plans

Toutes les étapes sont gérées par Archipel :

  • Études de faisabilités techniques et financières
  • Propositions de plusieures options esthétiques
  • Présentation d’un project 3D et conception des plans
  • Dépôt du permis de construire…
Construction de l'extension
l'extension terminée
Extension & rénovation globale d'une maison en provence

Les travaux sont coordonnés pour le client afin d’optimiser les délais du chantier.

La sélection des artisans intervenant sur les chantiers est particulièrement minitieuse et Archipel- Création contrôle systhématiquement tous les devis avec Batigest afin d’éviter tout dépassement de budget.

Avec Archipel-Création, nos clients bénéficient de la garantie décénale.

En savoir plus sur l’agrandissement d’une maison

On vous montre le changement à l'intérieur ?

La pièce de vie avant travaux
Extension pendant travaux
Extension
intérieur extension
intérieur extension
intérieur extension
terrasse pergola extension
avant travaux
création de l'extension
création de l'extension et des terrasses
extension et rénovation globale